Nieuwbouwresidentie REMI omvat 18 energiezuinige BEN-appartementen op een uitstekende locatie in Boom. De betere supermarktketens, ziekenhuis AZ Rivierenland en het park van Boom liggen op wandelafstand. Bovendien is er een directe verbinding met de A12 en E19 richting Antwerpen, Brussel en Mechelen mobiliteit ten top.
De residentie bestaat uit twee gebouwen die uitgeven op een prachtig aangelegde binnentuin. In totaal zijn er 26 autostaanplaatsen: 14 ondergrondse, 8 overdekte en 4 buitenstaanplaatsen op het gelijkvloers. Elk appartement wordt afgewerkt met hoogwaardige materialen en voorzien van de beste technieken inzake energiezuinigheid.
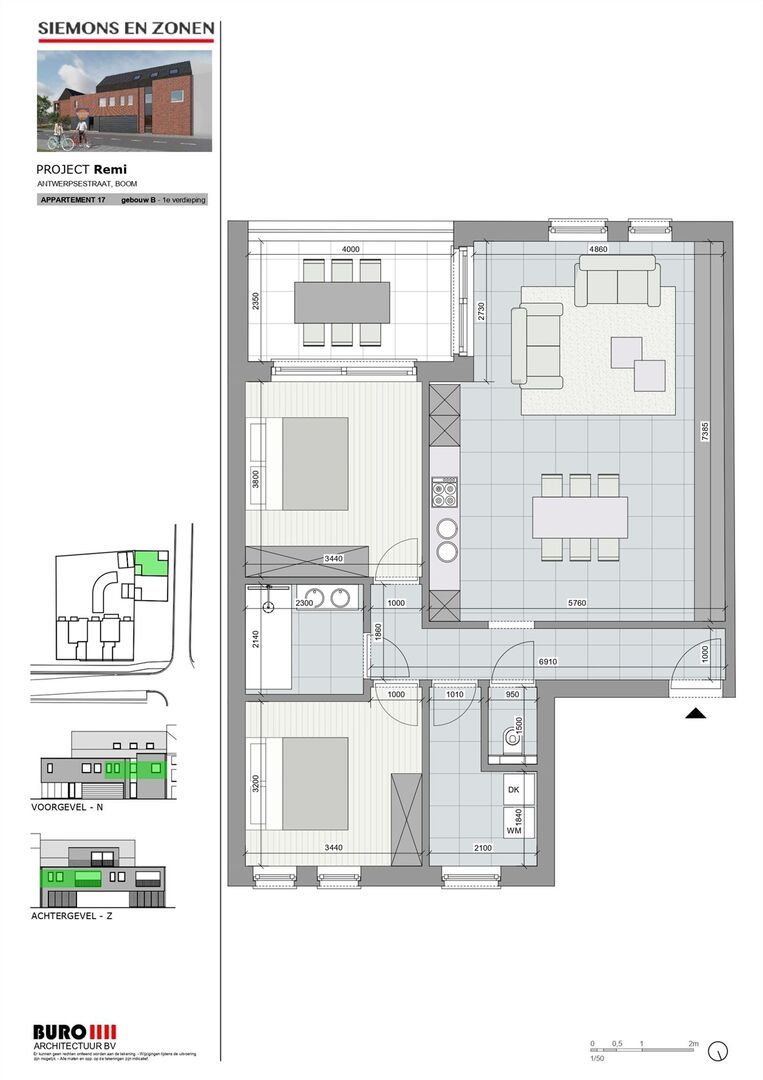
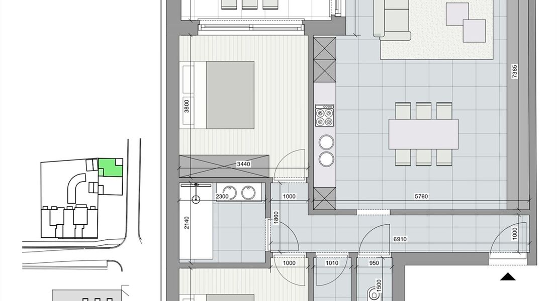
Appartement 17, gelegen in Blok B op de eerste verdieping rechts, omvat: een inkomhal, apart toilet, badkamer, berging, twee slaapkamers, een zitkamer, eetkamer met open keuken en een terras. Dit maakt het appartement ideaal als nieuwe thuis of als investering.
(Wg Vg Gvv Gvkr Gmo)
Overstromingsrisico: P-score A G-score A
EPB in opmaak
Prijs exclusief btw en kosten
Wenst u meer info, een persoonlijke toelichting of overweegt u een aankoop?
Contacteer Wichard via 0493/14.22.63 of wichard@walbersimmo.be.
De residentie bestaat uit twee gebouwen die uitgeven op een prachtig aangelegde binnentuin. In totaal zijn er 26 autostaanplaatsen: 14 ondergrondse, 8 overdekte en 4 buitenstaanplaatsen op het gelijkvloers. Elk appartement wordt afgewerkt met hoogwaardige materialen en voorzien van de beste technieken inzake energiezuinigheid.
Appartement 17, gelegen in Blok B op de eerste verdieping rechts, omvat: een inkomhal, apart toilet, badkamer, berging, twee slaapkamers, een zitkamer, eetkamer met open keuken en een terras. Dit maakt het appartement ideaal als nieuwe thuis of als investering.
(Wg Vg Gvv Gvkr Gmo)
Overstromingsrisico: P-score A G-score A
EPB in opmaak
Prijs exclusief btw en kosten
Wenst u meer info, een persoonlijke toelichting of overweegt u een aankoop?
Contacteer Wichard via 0493/14.22.63 of wichard@walbersimmo.be.
indeling
- Slaapkamers
- 2
- Badkamers
- 1
- Toiletten
- 1
- Terras
- Ja
- Terrasoppervlakte
- 9 m²
financieel
- Prijs
- € 299.000
- Verkoop onder BTW stelsel
- Ja
comfort
- Videofoon
- Ja
gebouw
- Bewoonbare oppervlakte
- 83 m²
- Bouwjaar
- 2025
- Verdieping
- 1
- Verdieping(en)
- 2
- Type dak
- Puntdak
Leipannen
terrein
- Perceel oppervlakte
- 1.483 m²
- Oriëntatie terras
- Zuid
energie
- Type ramen
- PVC
- Beglazing
- Trippele beglazing
- Elektriciteitskeuring
- Ja, conform
- Verwarming
- warmtepomp
- Type verwarming
- Individueel
garage
- Buitenparking
- 1
stedenbouwkundige informatie
- Bestemming
- Woongebied
- Bouwvergunning
- Ja
- Verkavelingsvergunning
- Nee
- Voorkooprecht
- Nee
- Dagvaarding
- Geen rechterlijke herstelmaatregel of bestuurlijke maatregel opgelegd
- Overstromingsrisico
- Niet gelegen in een overstromingsgevoelig gebied
- G-score
- A
- P-score
- A
Interesse in deze eigendom?
ref: 18313
Blijf op de hoogte
Schrijf u inOp zoek naar iets specifiek? Laat uw zoekwensen hier achter en we zorgen ervoor dat u het juiste aanbod als eerste in uw mailbox krijgt
Gratis schatting
Wil u graag de échte verkoopwaarde van uw woning kennen? Vraag nu een gratis schatting voor verkoop!
Vraag hier aan
Wenst u te verkopen
U wil uw woning, appartement of bouwgrond snel en zorgeloos verkopen aan een goede prijs? Dan bent u bij Walbers Immo aan het juiste adres.
Ik wil verkopen